Host & Stay - Ebb Tide
Preview only — see all hotel photos
See all 24 photos
عرض الفندق على الخريطة
Host & Stay - Ebb Tide
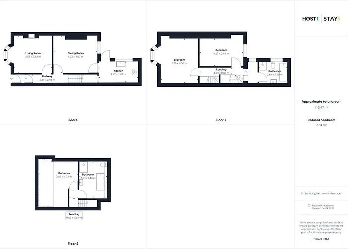
تقع فيلا Host & Stay - Ebb Tide ويتبي المكونة من 2 غرفة نوم على بعد 15 دقيقة تقريبًا سيرًا على الأقدام من ميناء ويتبي، وتوفّر إمكانية الوصول إلى العديد من مناطق الجذب السياحي في المنطقة.
يقع بيت العطلات في ويتبي على بعد 70 كم من مطار وادي دورهام تيز وليس بعيدا عن النقاط الثقافية المثيرة للاهتمام مثل المتحف التذكاري للكابتن كوك. تقع هذه الفيلا على مسافة 1.2 كم من منتزه بانيت، في حين تقع محطة حافلات Whitby على بعد 1 كم فقط.
تتميز الحمامات أيضًا بمجفف الشعر وملاءات الحمام والمناشف من أجل راحتك.
يمكن للضيوف إعداد وجبات الطعام في المطبخ المجهز بالكامل أو تناول الطعام في منطقة لتناول الطعام في الهواء الطلق. كما يتمّ توفير الغلاية الكهربائية والبرَّاد وأدوات المطبخ في المطبخ. سيستمتع الضيوف بالمأكولات Britse في Trenchers الذي يقع على بُعد 14 دقيقة مشياً على الأقدام.
المرافق
المميزات الرئيسية
- واي فاي
- أنشطة
- الحيوانات الأليفة ممنوعة
مرافق الفندق
- ممنوع التدخين في كل الأماكن
- واي فاي
- موقف السيارات
- تسجيل الوصول/ المغادرة الخاص
- غير مسموح بالحيوانات الأليفة
- أجهزة إنذار للدخان
- طفايات الحريق
- مفتاح الدخول
- غلاية الماء الكهربائية
- نشَّافة
- أدوات المطبخ
- فناء خارجي للأكل
- ملعب جولف
- تدفئة
- منطقة الجلوس
- فناء
- مرافق الشاي والقهوة
- طاولة الطعام
- مرافق الكي
- غسالة الملابس
- مستلزمات الحمام المجانية
- تلفاز بلازما
- أرضية مكسية بالسجاد
السياسات
خريطة
المعالم السياحية المحلية
المعالم السياحية
- متحف كابتن كوك التذكاري (700 متر)
- دير ويتبي (1000 متر)
المطارات
- مطار وادي دورهام تيز (70 كم)
محطات القطار
- Whitby Railway Station (500 متر)
التعليقات
تعليقات تم التأكد منها 100%